Proyecto ampliación de nuevas oficinas

BANCO FALABELLA S.A.
  • Realizado por: Bower
  • Completedo en:15 de Julio 2014
  • Monto de la Obra:S/168.000
  • Cliente: BANCO FALABELLA S.A.

Información del Proyecto

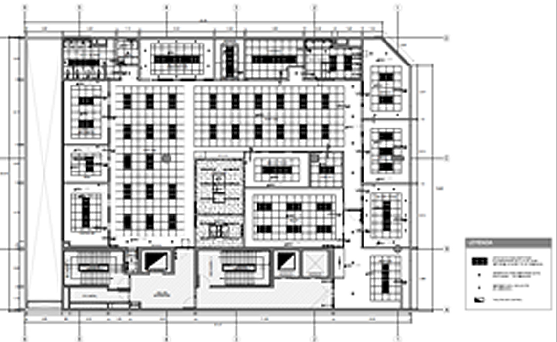
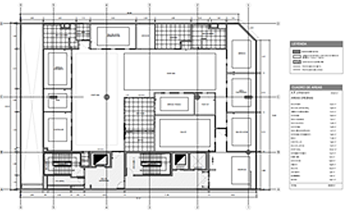
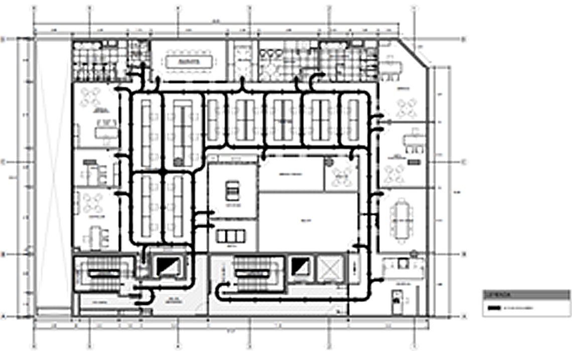
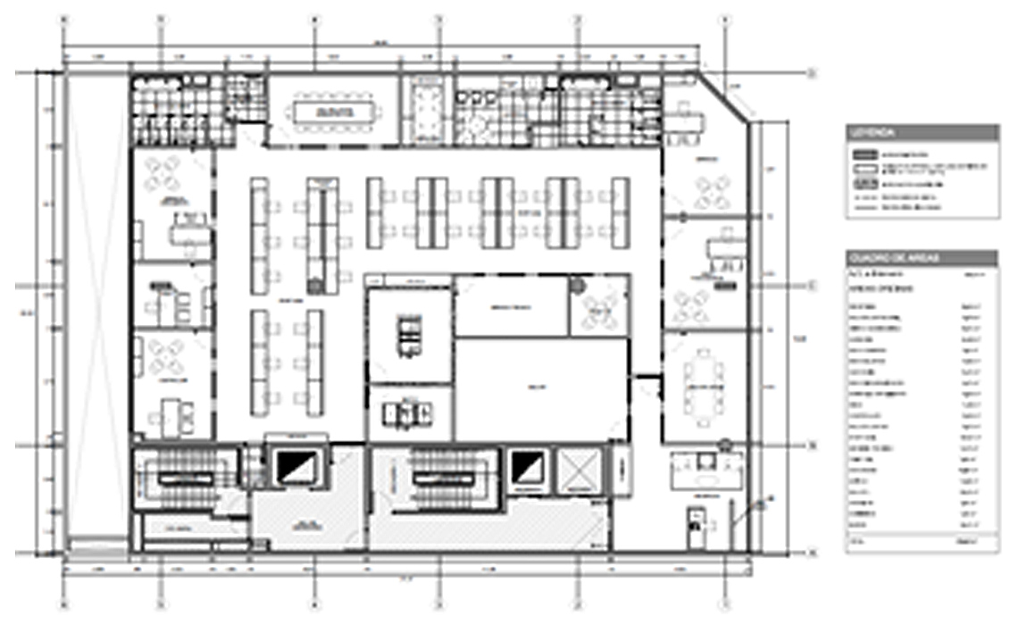
Servicio de Ingeniería de Detalle – Proyecto ampliación de nuevas oficinas.

Construcción de nuevas oficinas.

Trabajos de Ingeniería Realizados